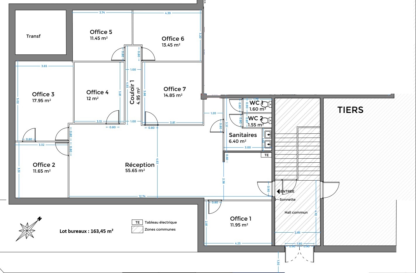
TECHNOPARC - A l'entrée du Technoparc, locaux d'environ 163 m² comprenant 7 bureaux cloisonnés (cloisons mobiles modulables). Sanitaires privatifs.
6 parkings privatifs
Nos honoraires comprennent la rédaction du bail et l’état des lieux d’entrée.
Les informations sur les risques auxquels ce bien est exposé sont disponibles sur le site Géorisques.
Type : Bureaux
Surface : 163 m²
Disponibilité : Immédiate
Prix HD : 0,00 € FAI
Prix HD/m² : 0,00 €
Hors droit d'enregistrement et TVA
Honoraires à charge acquéreur
DPE : Vierge
GES : Vierge


Située en plein cœur de Bourg-en-Bresse, TRABLY BUSINESS met à disposition de ses clients professionnels son savoir-faire en immobilier d'entreprise depuis près de 30 ans. Vente de locaux commerciaux ou d'activité, vente de bureaux, location de bureux à Bourg-en-Bresse et dans l'Ain nous sommes spécialisés dans l'immobilier tertiaire , assurant la gestion locative, l'asset management et le syndic de copropriétés pour les locaux commerciaux et les bureaux.. Avec près de 500 locaux professionnels gérés pour environ 300 propriétaires ou copropriétaires, notre connaissance approfondie du marché immobilier d'entreprise nous permet de fournir des conseils spécifiques aux chefs d'entreprise pour une gestion optimale de leurs biens.